


















全屋訂製 櫃體尺寸與節點
作 者:高偉科 編
出 版 社:江蘇鳳凰藝術出版社
出版日期:2023年08月01日
頁 數:224
裝 幀:精裝
ISBN:9787574109681
主編推薦
超全樣式櫃體,總有一款讓你怦然心動本書9大功能空間共200餘種新穎櫃體樣式供你選擇,內含玄關櫃、電視櫃、書櫃、櫥櫃、榻榻米、衣帽間、陽台櫃,酒櫃、衣櫃九種櫃體,超多搭配樣式,助你打造理想的家。 *櫃體定製圖與線圖對應清晰,尺寸詳細,直觀明了本書櫃體平面圖、立面圖、結構圖、節點圖、剖面圖、效果圖一一對應,尺寸詳細標註,材質選用、顏色搭配直觀展示,讓你拿來就能用。 *有顏值,有乾貨 封面外觀設計大氣沉穩,內文圖片精美,尺寸圖詳細準確,材質運用、顏色搭配資訊公開,是設計師的佳選。
內容介紹
新裝修的房子到底選什麼樣的全屋訂製櫃?
本書共有200多種新穎櫃體樣式供你選擇,總有一款適合你,帶你打造理想的家。
心儀的櫃體樣式卻苦惱於沒有對應的尺寸圖?
本書櫃體效果圖、平面圖、立面圖、結構圖、節點詳圖、剖面圖一一對應,直觀、明了,讓你拿來就能用。
不知道喜歡的櫃體材質選用和顏色搭配?
本書超詳細配有每種櫃體的材質選用信息,顏色搭配信息,讓你選用櫃體沒負擔。
有些櫃體細部圖具體做法不知道?
本書配有櫃體節點詳圖,讓你了解櫃體細部做法,輕鬆解決設計難題。
目錄
●①玄關櫃005
②酒櫃025
③榻榻米053
④衣櫃075
⑤書櫃101
⑥衣帽間127
⑦陽台櫃153
⑧電視櫃165
⑨櫥櫃191
















出版社:江蘇鳳凰科學技術出版社
出版時間:2024年01月
編者:曾麒麟 袁 偉
責任編輯:趙 研 劉屹立
ISBN 978-7-5713-3768-1
開本:16
語種:中文
成書尺寸:210mm(寬)×265mm(高)
裝幀:平裝
紙張:128公克太陽啞粉
印刷時間:2024年01月
版次、印次:第1版,第1次印刷
頁數:288頁
編輯推薦
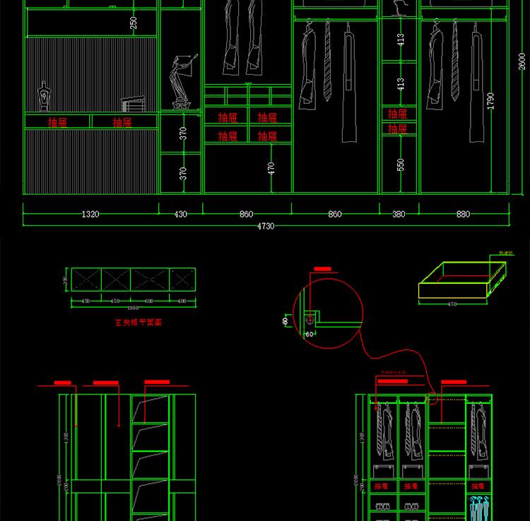
1. 為讀者提供了精選室內空間中常見的9類、157件定制櫃體的現場下單圖,本書遵循“實用又好看”的設計原則,致力於在實際定制需求中找到理想的平衡點。
2. 書中詳細標註了櫃體的做法與尺寸,不僅為設計師提供了靈感,也為消費者提供了實際選購參考,幫助他們在定製家具中找到滿足個性化需求的方案。
3. 本書提供大量精美的效果圖,將幫助讀者更好地理解如何在客製化櫃體設計中實現實用性和美觀性的平衡。
4. 隨書送1000餘張高清櫃體施工圖,手機隨時翻閱,物有所值。
目錄
第1章 鞋櫃
第2章 電視櫃
第3章 餐邊櫃
第4章 廚櫃
第5章 衣櫃
第6章 置物櫃
第7章 書櫃
第8章 衣帽間
第9章 榻榻米
內容簡介
在過去20年裡,從家具商場直接購買成品家具逐漸演變為選擇定製家具的趨勢,這使得定製家具行業蓬勃發展。
本書從實際出發,為裝修公司與設計工作室的設計師、從事定製家具設計工作的新人提供直覺的結構設計,從而填補設計師在定制行業歷練中可能存在的知識空白。並在為從業者提供所需知識和實用技能指南的同時,為消費者提供更詳細的了解定製家具的途徑。
本書精選室內空間中常見的9 類、157 件訂製櫃體的現場下單圖,遵循「實用又好看」的設計原則,書中詳細標註了這些櫃體的做法與尺寸,將收納與展示做到了理想的平衡。


NT$1299
《氣象學與生活 》弗雷德里克氣象學基礎理論知識 自然氣象科普書
NT$1299
基礎數學與生活 物理學與生活 基礎化學與生活
NT$2290
2025年新版精裝 倪海廈 圖文筆記(共6冊) 針灸大成+ 金匱要略+黃帝內經+神農本草+傷寒論+天紀解析圖文筆記 適合喜歡古中醫文化愛好者閱讀研究
NT$1980
中國民間奇幻全書【神鬼+精怪+仙妖】 (函套全3冊)特裝刷邊典藏版 中國神祇奇幻生靈魔鬼玄幻神秘奇事 民間神話故事傳說信仰民俗文化
NT$1399
中國繪畫史 +潘天壽談藝錄(共2冊)附贈五牛圖+書籤
NT$1990
【刷邊盒函版】道教大辭典 道教歷史文化現狀大型專科辭典 (附贈 神仙圖冊+知識圖譜+綾布捲軸畫+藏書票)
NT$1190
穆夏插畫集
NT$1399
攝影構圖藝術+快速提升照片水平的150個關鍵技法(共2冊)
NT$2590
女觀(主冊+副冊)共2冊 當代藝術家王依雅超大開本高清畫集 附贈【亞克力相框和4張6寸縮印畫】 經典節日禮品 七夕禮物
NT$1499
時間的力量+彩色的中國:跨越30年的影像歷史(共2冊)
NT$1590
世紀敦煌 跨百年的莫高窟影像再現 接續1600年美的歷程 100餘幅精品畫作敦煌壁畫與臨摹傳承人的故事 接觸敦煌壁畫的美好路徑
NT$2999
我等你 立體紙雕繪本【贈PVC包裝盒】天后海貝卡 經典節日禮品 七夕禮物
NT$1190
多雷插畫集 古斯塔夫 多雷原版 黑白版畫插畫經典全集
NT$1299
達芬奇手稿畫冊作品集 TASCHEN Leonardo da Vinci達芬奇素描手稿全集 英文版
NT$1299
【特裝刷邊版】全本紅樓夢 清 孫溫 繪 230幅絹本彩繪再現紅樓夢 仿古特種紙+鏤空工藝封面
NT$1698
中國傳統裝裱修復技藝+書畫修復六十年(共2冊)裝裱製作技法教程 裱框裝飾技術 老字畫復原修復工藝教學
NT$2590
證類本草箋釋(全6冊)繁體橫排
NT$1399
中國繪畫史 +潘天壽談藝錄(共2冊)附贈五牛圖+書籤
NT$1999
山海經 全本全註全譯 彩圖刷邊特製版(全3冊)
NT$1399
版式之道-日本版式設計手冊 平面設計書籍
NT$1499
物理學中的數學方法
NT$1199
四季滋補一碗湯+一碗好湯 喝出好氣色(共2冊)
NT$1699
【盒函精裝典藏版】荒誕序曲:加繆文集(全5冊) 局外人+鼠疫+西西弗神話+快樂的死+卡拉古拉 收錄60張加繆珍貴照片
NT$2590
三國演義 亞東版 盒裝刷邊特裝 (全二冊)
NT$2880
一版一印 亞東版【 紅樓夢】特裝珍藏版 全3本 紀念亞東圖書館成立110週年特裝版刷邊
NT$2980
黃帝內經 刷邊禮盒典藏版 全本全注全譯 附活學活用黃帝內經輔助讀本 (共3冊)
NT$1990
斯圖爾特微積分(第9版)全彩印刷 數學家斯圖爾特帶你走進數學殿堂 引導式教學立體化解說 微積分的百科全書 輕鬆入門微積分
NT$1799
【精裝8開】《城市 人類這樣聚集於大地》 百餘幅高畫質衛星攝影圖像 城市結構 風土人情 環境自然 攝影環保書籍
NT$2290
2025年新版大開本精裝 倪海廈 圖文筆記(共6冊) 針灸大成+ 金匱要略+黃帝內經+神農本草+傷寒論+天紀解析圖文筆記
NT$1790
【特裝刷邊盒函版】道教大辭典 吉宏忠道教百科全書 吸收百年道教研究成果 二十年匠心打造的道教文化結晶 道教歷史文化現狀大型專科辭典 (附贈 神仙圖冊+知識圖譜+綾布捲軸畫+藏書票)
NT$1490
英漢數學全書 代數、幾何與微積分初步 (美)梁家睿(Jerry Conrad Leung)
NT$3980
鳥瞰最美 國保 全書 以鳥瞰的 天地視角 重建五千年「國保」古蹟的空間敘事 專享8大好禮
NT$1399
美麗的數學+美妙的數學+尖叫的數學 (共3冊)獨具特色的數學科普書,帶你敲開身邊有趣的數學問題 趣味數學科普書籍
NT$1799
物理學與生活三部曲 牛頓駕駛學校+特務物理學+美妙的振動:音樂中的物理學(共3冊)
NT$1299
基礎數學與生活 物理學與生活 基礎化學與生活
NT$1990
【禮盒典藏特裝刷邊】玫瑰全書(限量編碼版) 贈玫瑰折疊雨傘+冰箱貼+磁性書籤+玫瑰禮盒 給優雅盛放浪漫生活的你
NT$2690
張其成全解黃帝內經(靈樞+素問 全5冊 )生命的百科全書 講透周易陰陽五運六氣 傳統醫學養生寶典 哲學醫學養生學
NT$5990
閔刻套印 莊子南華真經(全4冊)附贈 北冥有魚 或 莊周夢蝶 水晶鎮紙+帶編號藏書票
NT$3990
大國匠造 中國紅木家具製作圖譜(全6冊)椅幾類、櫃格類、台案類、沙發類、床榻類、組合和其他類 書中含實物圖 三視圖和CAD結構圖和雕刻效果圖
NT$1999
萬葉集 (全5冊)日式美學精神內核,自然風物手冊 (贈 萬葉集指南 筆記本 明信片 書籤)
NT$1990
茶與美+物與美+收藏物語+陶說 (全套4冊)日本民間茶藝陶瓷鑑賞 傳統雅生活情趣美學 (日)柳宗悅
NT$1990
【特裝刷邊禮盒版】繁體原版 食物本草 全彩印刷 來自明朝皇室的飲膳圖譜 隨書附贈5項好禮
NT$1780
植物先生:二十四節氣植物研學課 全手工鎖線裝訂,研發二十四種花草紙,與二十四篇文章、二十四幅彩圖氣息相通,形神統一,共同呈現植物之美
NT$1980
中國民間奇幻全書 神鬼+精怪+仙妖(函套全3冊)特裝刷邊典藏版 中國神祇奇幻生靈魔鬼玄幻神秘奇事 民間神話故事傳說信仰民俗文化
NT$1590
【精裝禮盒珍藏版雅昌印刷畫冊】莫奈 《追尋光影 》穆夏《擁抱繁花》 克林姆特《流金歲月》 梵高《守望星空》 隨書附贈多項週邊好禮 飛機盒包裝
NT$1599
【贈親筆信+明信片】我用一生畫絲路 趙以雄耿玉琨藝術畫集 絲綢之路風景歷史人物民族風俗遺址 高昌壁畫
NT$1990
浪客劍心:東京篇(全6冊)隨書贈送劍薰雙人PVC雙層立牌+精裝燙金函套+角色收藏卡+心回眼書籤+燙黑人物卡
NT$1990
【雙開合精裝典藏本】科學之美 最優雅的科學+最古老的學問 (共2冊)一本不走尋常路的科學書 偉大的科學概念+強大的科學魅力+細緻而神秘的美
NT$1599
【特裝刷邊版 磁扣對開禮盒】神曲 但丁傳世之作 內含135張多雷定制插畫
NT$4990
【湖州真絲宋錦函套】芥子園畫傳:翎毛草蟲花卉譜一函3卷 宣紙全彩原色高清印製 附收藏證書
NT$1399
《敦煌初見時》一印一畫典藏版 附贈2.5米超長旅行別冊+21枚手工印章 通關文牒+作者專屬藏書票+防撞手提盒
NT$1499
【飛機盒+珍珠棉防撞】(精裝大8開)天賜百色 Merasgar全新國風作品集 中國傳統色與插畫的結合插畫集
NT$2980
【特裝刷邊珍藏版】敦煌日課 (全3冊)萬物有靈+眾神召喚+文明賡續
NT$1999
豐子愷藝術通識四書 珍藏版 (共4冊) 藝術欣賞與人生的四十堂課
NT$3990
《世界國寶全書》刷邊特裝版 直通全球100座頂尖博物館,六大洲文明精粹,一冊盡收眼底 精裝大8開 附贈5項周邊好禮
NT$1599
荷蘭皇家圖書館典藏250週年精選紀念版【精裝8開】雕版手繪珍鳥圖鑑 附贈 觀鳥尋蹤筆記本+純美畫框+2張大幅珍鳥裝飾畫
NT$1399
計算機科學中的數學 信息與智能時代的必修課 麻省理工學院計算機科學與工程專業的數學課程講義
NT$1690
【全彩圖解共2冊】室內裝飾節點與構造施工+室內設計場景工藝全書 CAD圖 室內設計施工流程解析節點構造裝潢施工手冊
NT$6990
哈利波特25週年精裝限定紀念典藏版(全套7冊)
NT$1850
古建築傳統 木工+瓦工+傳統油工+傳統石工+彩畫工 (全5冊)古建築理論知識 工藝流程 關鍵技術
NT$1990
石材設計與藝術 室內裝潢中的石材選擇與運用指導 dop材料美學館編輯 大理石 石英石 花崗岩 石灰岩 洞石 板岩 砂岩
NT$2380
【繁體原版共4冊 大尺幅原稿復刻】梁思成古建築手繪圖: 圖像中國建築史+清式營造則例圖版+宋營造法式圖註+中國建築營造圖集 梁思成林徽因建築大師首繪圖
NT$1990
梁思成建築大系(全5冊)《梁思成林徽因建築藝術二十講》《梁思成註釋營造法式》《梁思成中國建築史》《梁思成古建築手繪賞析》《梁思成林徽因講故宮》
NT$2390
【親簽特裝刷邊版】山海經的博物世界 植物刷邊版 附贈(親簽+ 鈐印+4大周邊週)
NT$2390
【特製精裝刷邊典藏版】金石昆蟲草木狀 絕美中國博物手繪 繪 明代人的自然百科全書鑑 花卉冊 萱石 海錯圖 本草 科普 宮廷 書畫三絕
NT$1490
盧中南小楷 唐詩三百首+宋詞三百首(共2冊) 唐詩宋詞近距離臨摹字卡2本套 楷書字帖硬筆小楷臨摹 毛筆軟筆書法愛好者
NT$3990
【精裝大8開】中國石窟全書 盡覽1600年中國石窟之美 14省40座石窟 全景介紹+細部放大+手繪結構 一本讀懂中國石窟前世今生 附贈6項好禮
NT$1998
禪庭設計 枡野俊明作品集 精裝典藏版(共2冊) 日式大師庭院設計解析 枯山水園林景觀設計 禪宗花園 日式枯山水造景教學書籍
NT$1399
歲時請神 中國諸神眾仙百科全書 附贈風琴摺圖冊+賜福貼紙
NT$1790
星河畫卷 (親簽版)安久攝影作品集 星空攝影畫冊 天文攝影風景圖 前奔赴宇宙浪漫
NT$1399
《吳悅石授課筆記》福從天降 吳悅石畫鐘馗 吳悅石先生所作鐘馗作品輯 共有鐘馗畫像近120幅
NT$3690
【刷邊特裝典藏版】絲綢 一本書讀懂世界絲綢史 可觸摸的中國絲綢譜 絲綢生產歷史 工藝美學歷史 近代織造品 絲綢史書籍
NT$1590
【特裝刷邊版】徐霞客遊記(全2冊) [明]徐弘祖著
NT$1999
封神演義 麒麟特裝刷邊插圖版 雙面函套 隨書附贈專享6大好禮
NT$1990
【精美禮盒+首版首印紀念章+卡牌+藏書票+透卡 】思接千載:115 件文物裡的古代中國
NT$2980
中國神怪大辭典(第三版) 匯聚中國神仙鬼怪巫幻妖魔等綜合性大型字典
NT$2590
【刷邊特裝版】畫中尋宋 宋畫藝術珍藏集 重拾詩意棲居 與宋人共赴一場風雅之約 宋代美學
NT$1990
中國傳統色 故宮裡的色彩美學+色彩通識100講(共2冊)解讀中國傳統色的源流和美學特征(附贈24節氣卡+100色可撕色卡)
NT$4980
【精裝大8開 8.5KG珍藏版 】最美中國畫 中國名畫畫冊 名家代表作收錄 千里江山圖 洛神賦 女史箴步輦仕女臨摹畫冊 13張加長大拉頁 單張長達1.7米
NT$3980
【精裝大8開】 最美中國古地圖 系統化呈現原版古地圖 典藏絕版中華文明古地圖 天文輿地 城市風景 河渠水利 交通經濟軍與軍事圖 穿越時空的旅遊指南
NT$3990
【精裝8開 刷邊特裝版】中國茶葉全書 中茶文化百科全書 從喝茶到懂茶 5000年茶文化 喝茶談茶選茶訣竅 泡茶書籍
NT$1990
中國美術五千年+如何讀中國畫(共2冊)寫給大眾的美術通識讀本 煌煌畫卷 風雅傳承 5000年美的歷程
NT$6990
全唐詩(全套25冊)繁體豎排版(清)彭定求 點校整理
NT$1890
【刷邊特裝 40週年紀念版】楚辭譯註 彩圖珍藏本 250幅楚辭名物彩圖 2000條註
NT$2990
【特裝刷邊 精裝禮盒 】全唐詩 全彩插圖全4冊 布面精裝刷邊版 仿絨布磁吸函盒 附贈 鮮章編碼+花紋方巾+藏書票
NT$3980
【精裝大8開 刷邊特裝版】蘇東坡全書 隨書附贈6大好禮 600多幅珍藏級插圖,400篇傳世佳作,涵蓋了蘇東坡一生中的102位關鍵人脈、36處地理足跡、17種人生雅趣及9重身份
NT$2699
倪海廈台灣原版繁體全套8冊 繁體豎排 天紀人紀針灸傷寒周易 附贈全套視頻教程(128G 隨身碟 免下載 即插即看)
NT$1590
【原作1:1高清復刻】米芾 離騷經 行楷字帖 行書毛筆字帖 北宋經典碑帖書法臨摹字卡 1:1高清復刻墨跡本 近距離書法字帖臨摹卡
NT$1299
【原版1:1高清復刻】孫過庭 孝經冊 台北故宮博物院孤本復刻 晉唐書法範本 毛筆字帖書法 臨摹臨帖練習古帖碑帖拓本
NT$1690
【全彩圖解】進口變頻器電路圖集與原理圖解 +變頻器電路芯片級維修技能全圖解(共2冊)
NT$1199
【全彩圖解】黃帝內經 十二時辰養生法+ 十二經脈養生法(共2冊)中醫經典養生書籍 插圖講透經脈穴位 二十四節氣養生智慧妙方養生大全
NT$1560
香辛料原理與應用+食用調香術(共2冊)
NT$1399
七律指南(全2冊) [清]方元鶤 撰 黃靈庚 整理 探索七律詩體流派 沿革之選本 疏理七律詩體演變的詩史 創作七律書籍
NT$1590
鋼結構製作與安裝 + 建築鋼結構焊接新技術(共2冊)
NT$1590
【大8開】蔡兼素描靜物 石膏幾何體繪畫+對路素描幾何體 石膏靜物形體照片對畫臨摹範本(共2冊)
NT$1399
【8開】速寫易畫一本通+素描易畫一本通(共2冊)專業課件 全套石膏基礎靜物美術素描本
NT$2980
自然紀事:塞拉菲尼原畫復刻版
NT$2390
西行影紀(全3冊) 紀實攝影大師莊學本考察手稿日記 中國近代史西南地區攝影史料 攝影作品集畫冊書籍
NT$2690
馮承天 原創數學拓展普及類從系列(全套6冊)高等數學啟蒙小叢書 從解多項式方程式到阿貝爾不可能性定理 從群到李代數定理到超越數
NT$1990
【全彩圖解】魚料理:從海洋到餐桌+八十八種四季魚料理+蝦蟹料理圖鑑(共3冊)